- public life, erweiterung
- london, uk
- vorentwurf
- motaleb architekten
- klient: privat
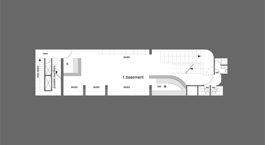
public life, eine viktorianische, unter denkmalschutz stehende, öffentliche toilette, wurde in den neunziger jahren zu einem sozialen kunstprojekt. da es sich nur um einen einzigen raum handelt, entstand der bedarf, die anlage zu erweitern. diese kann nur nach unten fortgesetzt werden. ein einfacher raum, der für kunst und kultur benutzt werden kann, während der ursprüngliche raum weiterhin als club zur finanzierung der kunstprojekte dienen soll. die zwei räume sind sowohl mit einer treppe als auch durch ausschnitte im boden miteinander physisch und optisch verbunden.
| < | 1 | 2 | 3 | 4 | 5 | 6 | > |