- kunsthalle
- schweinfurt, deutschland
- wettbewerb
- motaleb architekten mit rainer niemann
- klient: stadt schweinfurt
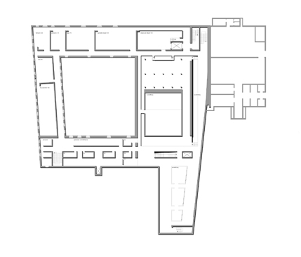
das ernst sachs bad, 1933 fertiggestellt, sollte zu einem kunstaustellungsort umgenutzt werden. das frei gestellte schwimmbecken und zwei parasitäre figuren am rand des beckens machen die ursprüngliche nutzung sichtbar und erinnern an die sprungbretter, die einst hier standen. sie können als videoräume genutzt werden. die restlichen flächen des bestandes wurden minimal “aufgeräumt”, um ausstellungen unterschiedlicher art zu ermöglichen. der draußen vorhandene abluftturm bildet mit blech verkleidet und beleuchtet ein weit sichtbares zeichen.
| < | 1 | 2 | 3 | 4 | 5 | 6 | 7 | > |