- atlantic colleges
- llantwit major, uk
- wettbewerb
- motaleb architekten mit rainer niemann
- klient: united world colleges
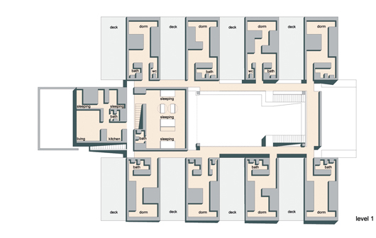
auf dem vorhandenen campus sollten vier neue wohneinheiten für je 40 studenten und hauseltern entworfen werden. pro wohneinheit sind raumkuben um eine doppelstöckige eingangshalle angeordnet. diese halle ist der zentrale begegnungsplatz, der sich durch eine verglasung zum grünen außenraum erweitert und den blick auf das meer zulässt. arbeitsräume und die wohnung der hauseltern gruppieren sich um diesen platz, die wohnkuben sind im oberen stockwerk. schränke, betten und sitzmöbel sind in den wänden integriert und lassen sich bei bedarf ausklappen.
| < | 1 | 2 | 3 | 4 | 5 | 6 | 7 | > |