 
            - familiengästehaus 14L
- chittagong, bangladesh
- entwurf
- motaleb architekten
- klient: privat
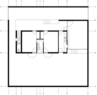
ein haus ist die projektion eigener wünsche und träume. die qualität eines hauses beruht auf der präzision, diese auszudrücken. wir gingen über die puren notwendigkeiten hinaus und versuchten atmosphäre einzufangen. räume verschiedener schattierungen fließen von einem zum nächsten. eine mauer wickelt sich um den garten mit den bestehenden bäumen und schützt auch die veranda am eingang. dieses gästehaus ist gemeint als versammlungs- und rückzugsort für unsere familie, als erinnerung an unsere herkunft.
| < | 1 | 2 | 3 | 4 | > | 
