 
            - dreifamilienhaus
- chennai, indien
- entwurf
- motaleb architekten
- klient: privat
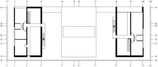
eine hinduistische großfamilie wünschte sich einen lebensraum auf vier zusammen geschalteten grundstücken. unser vorschlag ist ein offener raum in einem geschlossenen bezirk. jede familie hat ihr eigenes terrain innerhalb ihrer eigenen hülle im schoß der gemeinschaft. teile eines bandes symbolisieren kontinuität und einheit als zeichen der geborgenheit. es ist perforiert, so dass durchlässigkeit möglich wird. das band definiert den raum durch seine präsenz, willkommen heißend und abweisend zugleich.
| < | 1 | 2 | 3 | 4 | 5 | 6 | 7 | 8 | > | 
